0

F3 - MAUREPAS - JARDIN DE SAUVOLE - LOGGIA

Maurepas (78310)
Réf : B1433b

Christine de BLB Immobilier propose un appartement de type F3, situé au 20 Rue Claude Bernard à Maurepas, au 2ᵉ étage sur 5, avec une entrée dans les lieux prévue fin mars 2027.

Caractéristiques du bien :
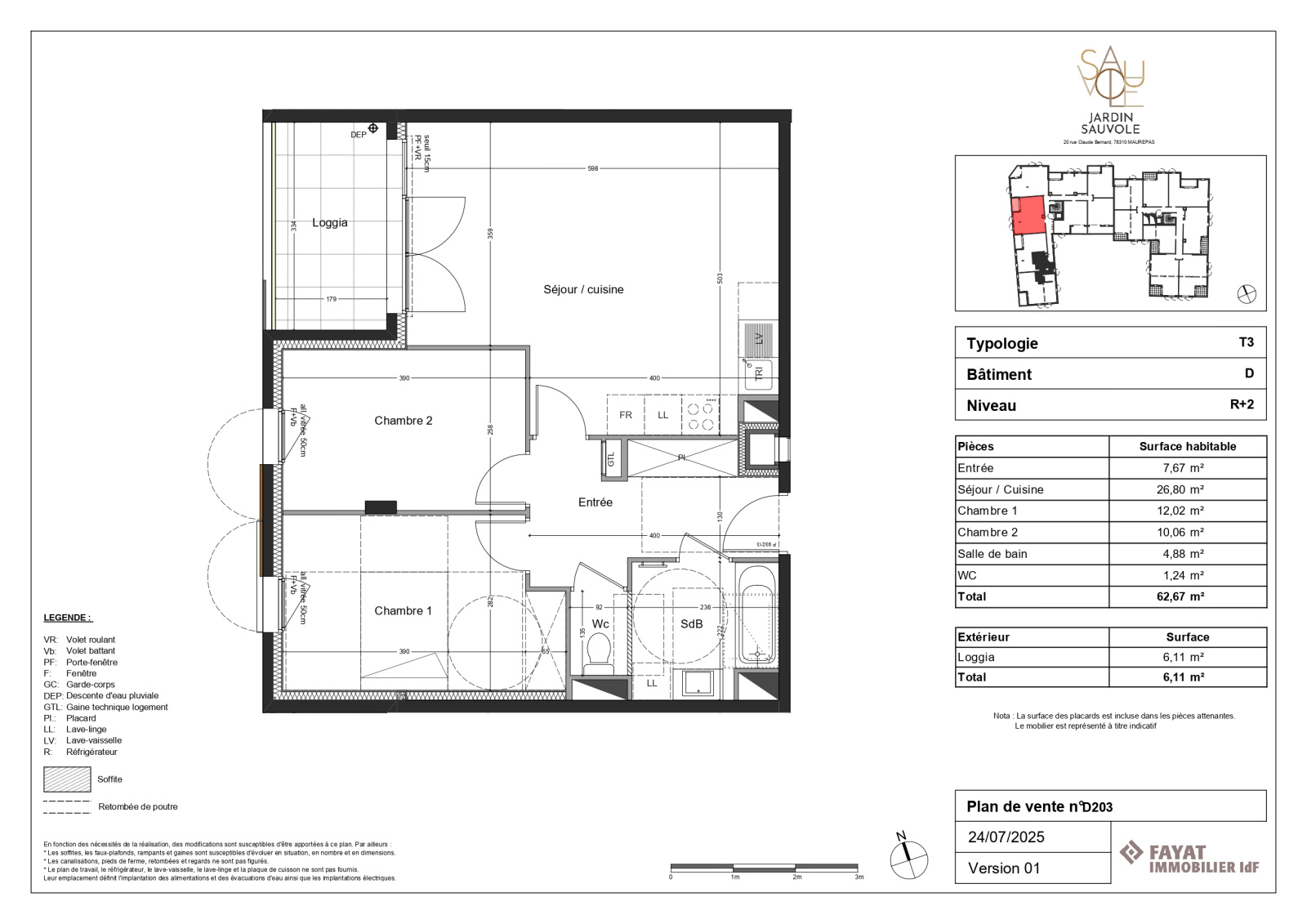
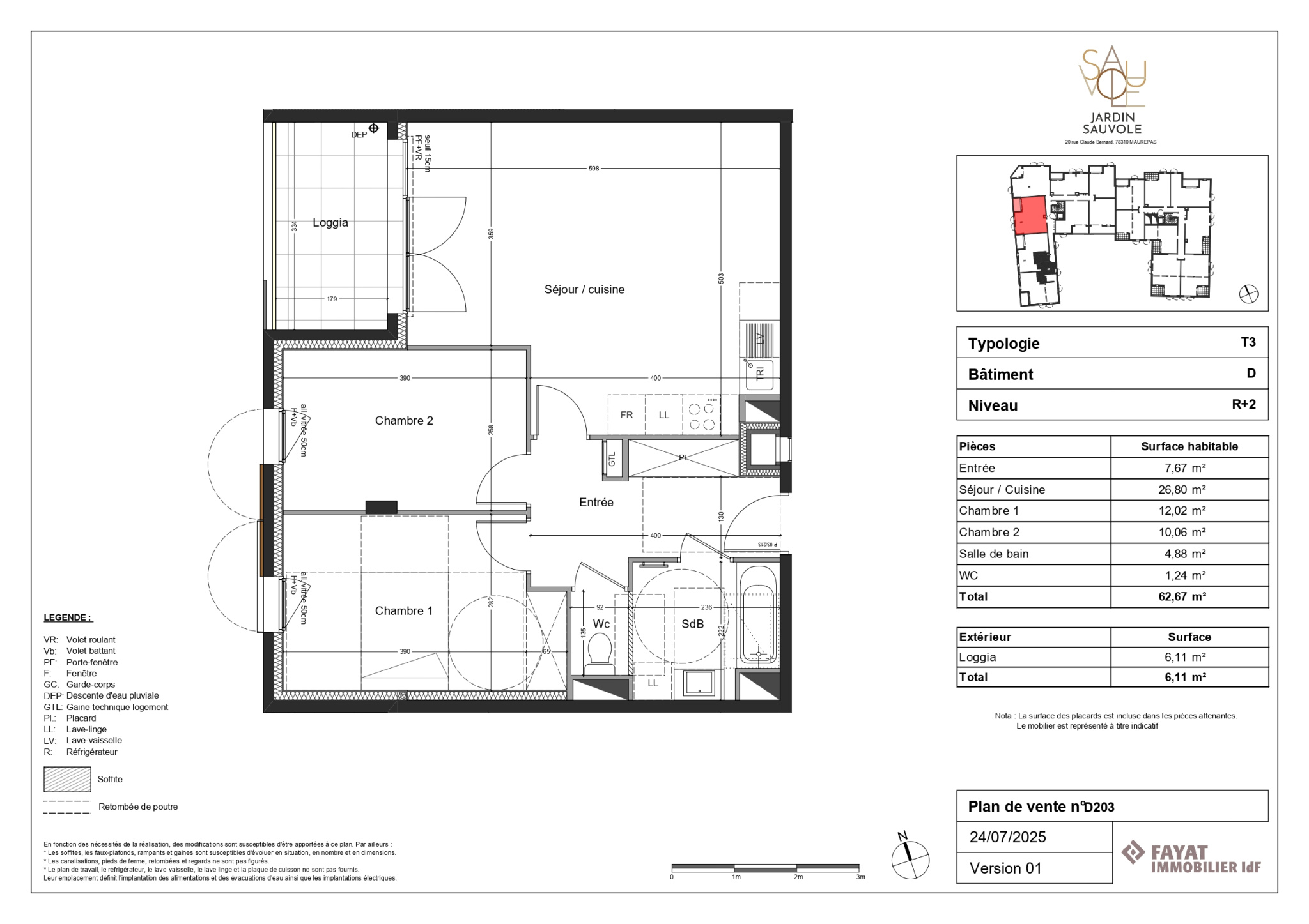
- surface de 62,67 m²,
- exposition Nord/Est,
- loggia attenante au séjour,
- salle de bains,
- ascenseur,
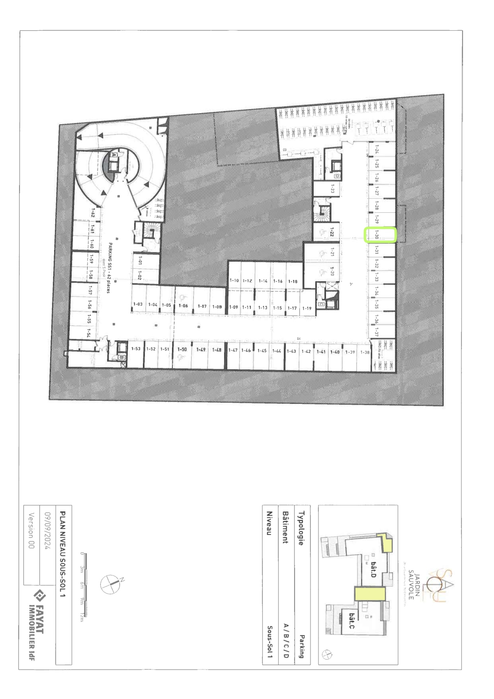
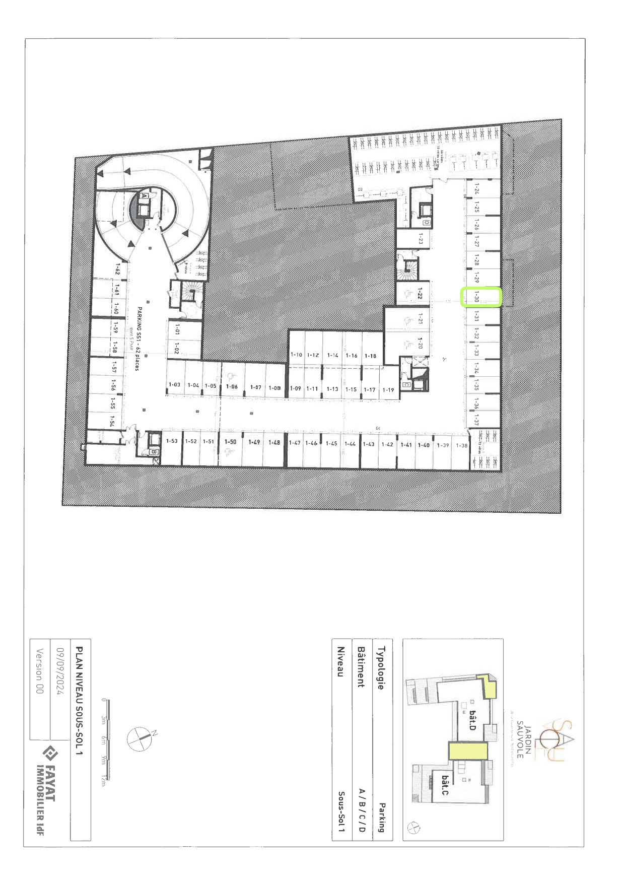
- place de parking en sous-sol,
- volets roulants manuels dans le séjour et battants dans les chambres,
- appartement conforme aux normes RE2020 avec certification HQE en vigueur au moment de la livraison.

Environnement :
- résidence à venir « Jardin Sauvole »,
- proximité des commodités de Maurepas (commerces, transports, services).


Informations complémentaires :
- entrée dans les lieux prévue le 30 mars 2027.

Informations financières :
- prix honoraires inclus : 285.725€, soit 275.000€ net vendeur dont 94.500 € répartis comme suit : 19.411 € au vendeur en paiement comptant, 73.589 € à la banque (prêt ou comptant), 1.500 € à la Caisse des Dépôts et Consignations,
- frais de notaire réduits.

Cet appartement à venit est une opportunité rare à ne pas manquer ! Contactez Christine LAMY – BLB Immobilier – 06.99.09.43.49 – Disponible 7J/7 – Agence de Maurepas.

découvrir le bien
Prix du bien 285 725 €
Pièce(s) 3
Chambre(s) 2

Caractéristiques du bien

Caractéristiques Valeurs
Code postal 78310
Surface habitable (m²) 62,67 m²
Surface loi Carrez (m²) 62,67 m²
Nombre de chambre(s) 2
Nombre de pièces 3
Etage 2
Ascenseur OUI
Nb de salle de bains 1
Cuisine Américaine
Mode de chauffage Autre
Type de chauffage Autre
Format de chauffage Collectif
Visiophone OUI
Loggia OUI
Cave NON
Exposition Nord-Est

Infos financières

Caractéristiques Valeurs
Prix de vente honoraires TTC inclus 285 725 €
Prix de vente honoraires TTC exclus 275 000 €
Honoraires TTC à la charge acquéreur 3,9 %

Bilans énergétiques

DPE GES
Ce bien vous intéresse ?
Fieldset par défaut
Fieldset par défaut
Validation

* Champs obligatoires

Contacter l'agence
Validation
Les informations recueillies sur ce formulaire sont enregistrées dans un fichier informatisé par La Boite Immo agissant comme Sous-traitant du traitement pour la gestion de la clientèle/prospects de l'Agence / du Réseau qui reste Responsable du Traitement de vos Données personnelles. La base légale du traitement repose sur l'intérêt légitime de l'Agence / du Réseau. Elles sont conservées jusqu'à demande de suppression et sont destinées à l'Agence / au Réseau. Conformément à la loi « informatique et libertés », vous disposez des droits d’accès, de rectification, d’effacement, d’opposition, de limitation et de portabilité de vos données. Vous pouvez retirer votre consentement à tout moment en contactant directement l’Agence / Le Réseau. Consultez le site https://cnil.fr/fr pour plus d’informations sur vos droits. Si vous estimez, après avoir contacté l'Agence / le Réseau, que vos droits « Informatique et Libertés » ne sont pas respectés, vous pouvez adresser une réclamation à la CNIL. Nous vous informons de l’existence de la liste d'opposition au démarchage téléphonique « Bloctel », sur laquelle vous pouvez vous inscrire ici : https://www.bloctel.gouv.fr Dans le cadre de la protection des Données personnelles, nous vous invitons à ne pas inscrire de Données sensibles dans le champ de saisie libre.
Ce site est protégé par reCAPTCHA, les Politiques de Confidentialité et les Conditions d'Utilisation de Google s'appliquent.