0

ÉLANCOURT - APPARTEMENT T3 DE 64,65 M² AVEC BALCON ET CAVE

Élancourt (78990)
Réf : B1034

** Sous promesse de vente ** BLB Immobilier a le plaisir de vous présenter ce charmant appartement entièrement rénové d’une superficie de 64,65m² situé au 3ème étage d’un immeuble avec ascenseur. Vous n’êtes qu’à quelques pas du centre médical Claude Bernard, ainsi que des infrastructures scolaires, de loisirs et de transports.

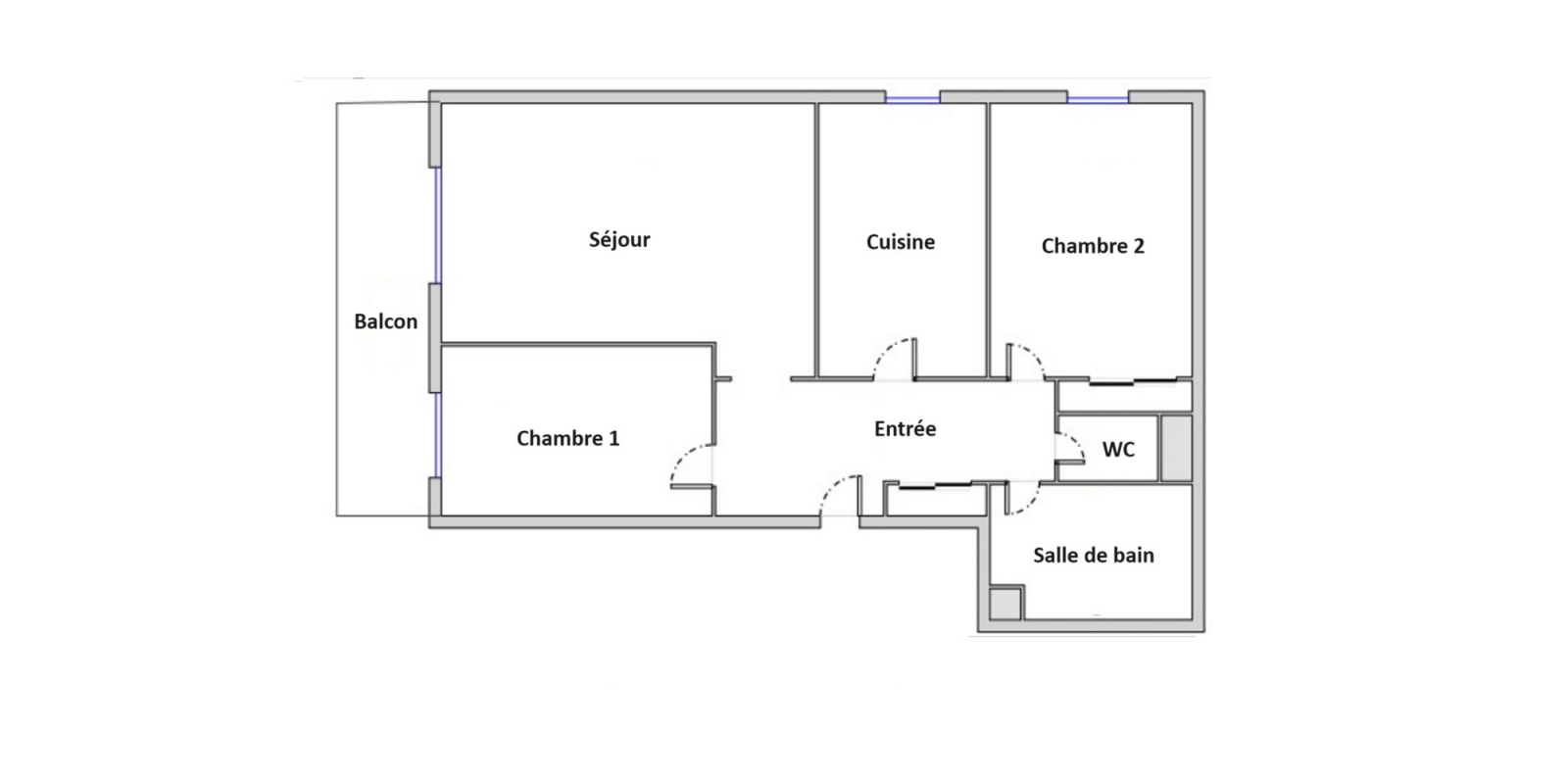
Ce logement se compose d’une entrée munie d’un placard de rangement avec une distribution en étoile permettant l’accès direct à chacune des pièces. Un séjour de 18m² très lumineux grace à sa grande baie vitré orientée ouest donnant sur un balcon sans vis-à-vis d’une surface de 8m². Une cuisine semi-ouverte sur le séjour d’environ 9m². Une première chambre/bureau qui est également reliée au balcon.

La suite du bien nous conduit à l’espace nuit comprenant une grande chambre, une salle de bain et un WC indépendant.

Une cave se trouve en annexe de ce logement au sous-sol. Vous bénéficierez également d’un local vélo ordonné au RDC.


Les informations sur les risques auxquels ce bien est exposé sont disponibles sur le site Géorisques : www.georisques.gouv.fr

Pour tout renseignement et prise de rendez-vous, veuillez contacter votre agent immobilier Thomas CHATAIS disponible pour vous au 06.62.24.60.88 ou à notre agence immobilière de Maurepas. La présente annonce immobilière a été rédigée sous la responsabilité éditoriale de M. CHATAIS Thomas (EI), RSAC VERSAILLES n° 910458074.

Prix du bien Nous consulter
Pièce(s) 3
Chambre(s) 2

Caractéristiques du bien

Caractéristiques Valeurs
Code postal 78990
Surface habitable (m²) 64,65 m²
Surface loi Carrez (m²) 64,65 m²
Nombre de chambre(s) 2
Nombre de pièces 3
Etage 3
Ascenseur OUI
Vue Dégagée
Nb de salle de bains 1
Nb de salle d'eau 1
Type de cuisine SEMI-EQUIPEE
Mode de chauffage Gaz
Type de chauffage TRAD_TYPE_CHAUFF_CHAUDIERE
Format de chauffage Individuel
Balcon OUI
Cave OUI
Surface cave (m²) 5
Exposition Ouest
Année de construction 1975

Infos financières

Caractéristiques Valeurs
Charges 112 €
Taxe foncière annuelle 1 374 €
Ces biens peuvent vous intéresser