0

ÉLANCOURT - APPARTEMENT T3 DE 62,18 M² AVEC PLACE DE PARKING AU SOUS-SOL

Élancourt (78990)
Réf : B1060

//SOUS PROMESSE DE VENTE// Situé à la Clé de Saint Pierre, Thomas de BLB Immobilier a le plaisir de vous présenter ce charmant appartement entièrement rénové entre 2019 et 2020, d’une superficie de 62,18m² situé au 3ème et dernier étage.

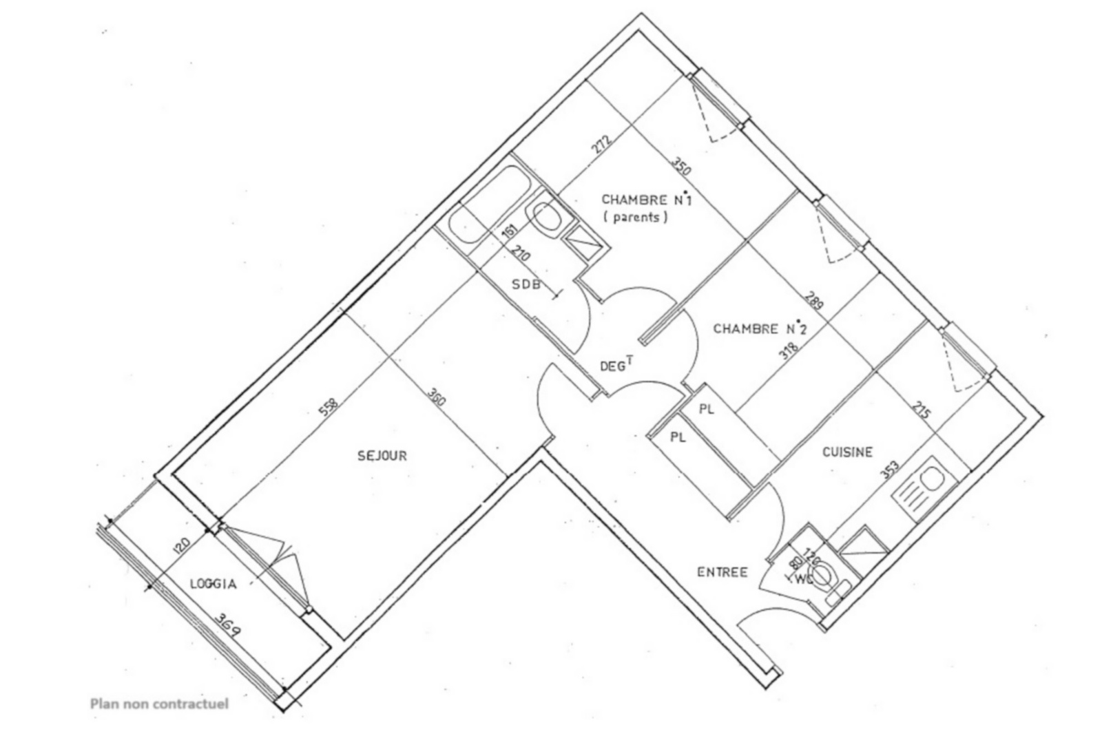
Il se compose d'une entrée desservant une cuisine fermée (8,1m²), un wc indépendant ainsi qu’un séjour d'environ 20,08 m² très lumineux donnant sur une loggia exposée sud et sans vis-à-vis. La suite du bien nous conduit à l’espace nuit, un dégagement dessert une salle d’eau, ainsi que 2 chambres (10,49m² et 10,44m²).

1 place de parking pouvant être boxée en sous-sol accompagne ce bien.

LES PLUS : Excellente localisation, aucuns travaux, appartement bien agencé et bien plus.

Situé dans une résidence familiale et calme d’Élancourt. Vous trouverez à proximité toutes les commodités nécessaires : Crèches, écoles maternelles, primaires, collèges et lycées, arrêt de bus, accès N10 et N12.

La présente annonce immobilière vise 2 lots principaux dans une copropriété formant 232 lots au total ne faisant l'objet d'aucune procédure en cours et des charges de copropriété d'environ 122€/mois déclarées par le vendeur, elles comprennent : Eau froide, entretien des parties communes, espace vert, etc..

Les informations sur l’état des risques et pollution (ERP) auxquels ce bien est exposé sont disponibles sur le site Géorisques : www.georisques.gouv.fr. N'hésitez pas à contacter votre agent immobilier Thomas CHATAIS pour effectuer une visite ou pour tout renseignement, disponible pour vous au 06.62.24.60.88 ou à notre agence immobilière de Maurepas. La présente annonce immobilière a été rédigée sous la responsabilité éditoriale de M. CHATAIS Thomas (EI), RSAC VERSAILLES n° 910458074.

Prix du bien Nous consulter
Pièce(s) 3
Chambre(s) 2

Caractéristiques du bien

Caractéristiques Valeurs
Code postal 78990
Surface habitable (m²) 62,18 m²
Surface loi Carrez (m²) 62,18 m²
Nombre de chambre(s) 2
Nombre de pièces 3
Etage 3
Ascenseur NON
Vue Dégagée
Nb de salle d'eau 1
Cuisine Séparée
Type de cuisine Equipée
Mode de chauffage Gaz
Type de chauffage Radiateur
Format de chauffage Individuel
Visiophone OUI
Balcon OUI
Cave NON
Exposition Sud
Année de construction 1994

Infos financières

Caractéristiques Valeurs
Charges 122 €
Taxe foncière annuelle 1 128 €
Ces biens peuvent vous intéresser